AI Floor Plan Generator for Smart Layouts Effortless Design
Turn rough sketches and hand-drawn layouts into clean, professional floor plans in seconds — perfect for early-stage design exploration and client communication.
No credit card required2000 free credits


Photorealistic render with perfect lighting, realistic materials and cinematic composition...


Photorealistic render with perfect lighting, realistic materials and cinematic composition...
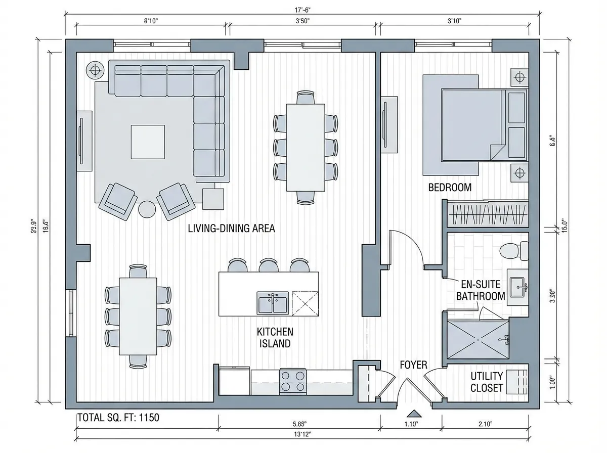
From Sketch to Professional Plan
Drag the slider to see how AI transforms a rough hand-drawn sketch into a clean, presentation-ready floor plan with room labels and layout optimization.


How It Works
Draw a rough layout on paper or a tablet and upload it. You can also describe your requirements in text — number of rooms, square footage, and style.
Adjust room sizes, add or remove spaces, change the flow between areas. Specify residential, commercial, or hospitality requirements.
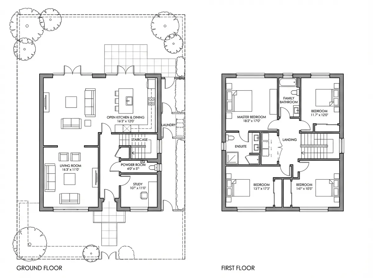
Export a clean, labeled floor plan ready for client presentations, initial design reviews, or as a starting point for detailed CAD development.
Perfect for Every Design Phase
From napkin sketches to client presentations, the AI floor plan generator accelerates your space planning workflow.

Explore multiple layout options in minutes during early design meetings. Generate and compare floor plan alternatives before committing to a direction.

Sketch ideas during client meetings and instantly generate clean floor plans that communicate spatial relationships and room proportions clearly.

Create professional floor plans for property listings from quick measurements and sketches, helping buyers understand the layout before visiting.

Generate furniture layout options and space allocation plans for interior design projects, optimizing flow and functionality for each room.
What Makes Our AI Floor Plans Different
Sketch Recognition
Upload hand-drawn layouts on paper or tablet and AI interprets walls, doors, windows, and room boundaries to produce clean digital plans.
Smart Room Labeling
AI automatically identifies and labels rooms based on size, position, and context — living room, kitchen, bedroom, bathroom — with correct proportions.
Layout Optimization
AI suggests improved circulation, better room adjacencies, and more efficient use of space based on architectural best practices and building standards.
Multiple Variations
Generate several layout options from the same brief or sketch, giving you and your clients meaningful alternatives to compare and discuss.
Explore More Architecture AI
Frequently Asked Questions
Common questions about the AI floor plan generator.